Contact →
外観写真
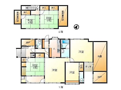
間取り図
区画図
現地写真
その他画像
内観写真
キッチン
風呂
トイレ
洗面所
和室
和室
洋室
洋室
玄関
茶室
納戸
2F 和室
2F 和室
トイレ
現地写真
2F 内観
現地写真
現地写真
現地写真
現地写真
現地写真
エントランス
現地写真
現地写真
現地写真
現地写真
現地写真
現地写真
現地写真
現地写真
洋室
洋室
洋室
Listed price
¥16,600,000

Floor plan

6K

Building size

173.85m²

Land size

895.52m²

  1. Nagano
  2. Saku
  3. House
  4. For sale
  5. AN116-PN374

A used 6K house on a large plot near the Nozawa Honmachi intersection in Nozawa, Saku City.

Active
Overview

Conveniently located near schools, supermarkets, banks, etc.

Remarks

Water: Public Electricity: Chubu Electric Power Gas: City Gas Sewage: Public Sewer *: Setback required *: Quasi-fire prevention area ◇Elementary school: Nozawa Elementary School, approximately 650m ◇Junior high school: Nozawa Junior High School, approximately 400m ◇Supermarket: Tsuruya Nozawa, approximately 700m *: Eligible for buried cultural property *: Partial surface rights granted (sewer) *: Other people may pass through the property

12 Views
0 Favorites

Aggregated Property

This detailed property information has been carefully compiled from a trusted source in real estate. We believe in sharing valuable insights to help you make informed decisions.

Last updated:

28/05/2025 12:38

Source:

003372 ↗
Report Outdated Information
Price Insights

Listed price

¥16,600,000 (13/05/2024)

Calculate using Flat35 at 1.3% annual interest

Est. monthly payment

¥49,216/month

Property Details

Time on Viila

540 days

Transaction type

Brokerage (Exclusive)

Property type

House

Built

September 1987

Floor plan

6K

Building size

173.85 m² (52.59 tsubo)

Land size

895.52 m² (270.89 tsubo)

建蔽率

60%

容積率

200%

地目

宅地

土地権利

所有権

用途地域

第1種住居地域

現況

空屋

構造

木造瓦葺2階建

Location

Sign in to show exact location

By logging in, you agree to our Terms of Use and to receive Viila emails & updates and acknowledge that you read our Privacy Policy.

Cost Overview
Listed price
¥16,600,000

When signing a contract

Deposit (10%)
¥1,660,000
Contract stamp tax
¥10,000

When settling the remaining fees

Remaining sum of the sales price
¥14,940,000
Brokerage fee
¥613,800
Estimated total upon purchasing
¥17,223,800

Contract stamp tax, brokerage fee and Tax payment are calculated from the displayed price. It may differ at the time of actual transaction. Separately, management fees, property taxes, etc. will be settled by the seller and the buyer starting from the delivery date.

Viila Insight 0

Sign In to comment

By logging in, you agree to our Terms of Use and to receive Viila emails & updates and acknowledge that you read our Privacy Policy.

Payment Calculator

Estimated Payment

Mortgage amount

¥30,000,000

Monthly Payment

¥91,855

Total Annual Payment

¥1,102,260

Total Lifetime Repayment

¥38,579,100

Similar properties

Saku · House · less than ¥16,600,000 Map search

Nearby properties

Properties within 1.5km radius Map search

Top