Contact →
外観写真
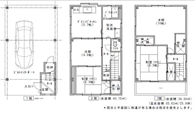
間取り図
外観写真
内観写真
ダイニングキッチン
キッチン
和室
トイレ
洗面所
階段
階段
接道
Listed price
¥17,000,000

Floor plan

4DK

Building size

82.63m²

Land size

60.79m²

  1. Nagano
  2. Ueda
  3. House
  4. For sale
  5. AN117-PN604

This is a 3LDK detached house in the center of Ueda City! The lot is compact, but there is parking for 2-3 cars. It is conveniently located, 12 minutes walk from Ueda Station and 5 minutes walk from the supermarket (Tsuruya). Please feel free to contact us about remodeling.

Active
Overview

☆Ueda City Central☆☆4DK☆

Remarks

Water: Public Electricity: Chubu Electric Power Gas: City Gas Sewage: Public Sewer Flood Hazard Map: 0.5m to less than 3m Parking Capacity: 2-3 Disclaimer of Liability for Non-Conformity of Contract

7 Views
0 Favorites

Aggregated Property

This detailed property information has been carefully compiled from a trusted source in real estate. We believe in sharing valuable insights to help you make informed decisions.

Last updated:

28/05/2025 13:08

Source:

002314 ↗
Report Outdated Information
Price Insights

Listed price

¥17,000,000 (12/05/2025)

Calculate using Flat35 at 1.3% annual interest

Est. monthly payment

¥50,402/month

Property Details

Time on Viila

178 days

Transaction type

Brokerage (Exclusive)

Property type

House

Built

April 1988

Floor plan

4DK

Building size

82.63 m² (25.00 tsubo)

Land size

60.79 m² (18.39 tsubo)

建蔽率

80%

容積率

400%

地目

宅地

土地権利

所有権

用途地域

商業地域

現況

空屋

構造

鉄骨造亜鉛メッキ鋼板葺3階建

Location

Sign in to show exact location

By logging in, you agree to our Terms of Use and to receive Viila emails & updates and acknowledge that you read our Privacy Policy.

Cost Overview
Listed price
¥17,000,000

When signing a contract

Deposit (10%)
¥1,700,000
Contract stamp tax
¥10,000

When settling the remaining fees

Remaining sum of the sales price
¥15,300,000
Brokerage fee
¥627,000
Estimated total upon purchasing
¥17,637,000

Contract stamp tax, brokerage fee and Tax payment are calculated from the displayed price. It may differ at the time of actual transaction. Separately, management fees, property taxes, etc. will be settled by the seller and the buyer starting from the delivery date.

Viila Insight 0

Sign In to comment

By logging in, you agree to our Terms of Use and to receive Viila emails & updates and acknowledge that you read our Privacy Policy.

Payment Calculator

Estimated Payment

Mortgage amount

¥30,000,000

Monthly Payment

¥91,855

Total Annual Payment

¥1,102,260

Total Lifetime Repayment

¥38,579,100

Similar properties

Ueda · House · less than ¥17,000,000 Map search

Nearby properties

Properties within 1.5km radius Map search

Top